

WJ41H、WJ41W型波紋管截止閥
產品說明: WJ41H、WJ41W 型 波紋管截止閥PN16~PN40適用于工作壓力 1.6~4.0MPa,工作溫度-29~350℃的石油、化工、制藥、化肥、電力行業等各種的工況上,卻斷或接通調節管路介質。 產品特點: 1、產品結構合理、密封可靠; 2、密封面堆焊Co基硬質合金,耐磨...
產品型號:WJ41H、WJ41W
產品口徑(DN):15~200(mm)
產品壓力(PN):1.6~4.0(Mpa)
更新日期:2015-05-20
24小時免費咨詢電話021-80392609
- 產品詳情
產品說明:
WJ41H、WJ41W 型 波紋管截止閥PN16~PN40適用于工作壓力 1.6~4.0MPa,工作溫度-29~350℃的石油、化工、制藥、化肥、電力行業等各種的工況上,切斷或接通調節管路介質。
產品特點:
1、產品結構合理、密封可靠; 2、密封面堆焊Co基硬質合金,耐磨、耐腐、抗摩擦性能好、使用壽命長;3、閥桿調質及表面氮化處理,有良好的抗腐和抗摩擦性能; 4、零件材質及法蘭、堆焊端尺寸可根據實際工況或用戶要求合理選配,滿足各種工程需要; 5、閥芯可根據需要做承切斷型和調節型;
產品執行標準
結構形式:BB-BG-0S&Y 設計標準:GB12235 結構長度:GB12221 連接法蘭:GB9113、JB/T79、HG20596 試驗和檢驗:JB/T9092、GB/T13927
產品性能參數:
| 型號 | WJ41H-16C | WJ41H-25C | WJ41W-16P | WJ41W-25P | |
| 工作壓力(MPa) | 1.6 | 2.5 | 1.6 | 2.5 | |
| 適用溫度(℃) | ≤425 | ≤150(保溫夾套) | |||
| 適用介質 | 無腐蝕性介質 | 腐蝕性介質 | |||
| 材料 | 閥體、閥蓋、閘板 | 碳素鋼 | 鉻鎳鈦不銹鋼 | ||
| 閥桿 | 鉻不銹鋼 | 鉻鎳鈦不銹鋼 | |||
| 密封面 | 鉻不銹鋼或碳鋼堆焊硬質合金 | 鉻鎳鈦不銹鋼 | |||
| 填料 | 柔性石墨或夾不銹鋼絲柔性石墨 | 柔性石墨或夾不銹鋼絲柔性石墨 | |||
| 波紋管 | 奧氏體不銹鋼 | 奧氏體不銹鋼 | |||
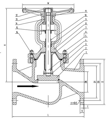
主要外形結構連接尺寸:

| 公稱通徑 | L | D | D1 | D2 | b | f | Z-d | H | D0 |
| WJ41H-16C WJ41W-16P | |||||||||
| 15 | 130 | 95 | 65 | 47 | 14 | 2 | 4-13.5 | 202 | 120 |
| 20 | 150 | 105 | 75 | 58 | 14 | 2 | 4-13.5 | 231 | 140 |
| 25 | 160 | 115 | 85 | 68 | 14 | 2 | 4-13.5 | 231 | 140 |
| 32 | 180 | 140 | 100 | 78 | 16 | 2 | 4-17.5 | 286 | 160 |
| 40 | 200 | 150 | 110 | 88 | 16 | 3 | 4-17.5 | 317 | 200 |
| 50 | 230 | 165 | 125 | 102 | 16 | 3 | 4-17.5 | 317 | 200 |
| 65 | 290 | 185 | 145 | 122 | 18 | 3 | 8-17.5 | 331 | 240 |
| 80 | 310 | 200 | 160 | 123 | 20 | 3 | 8-17.5 | 402 | 240 |
| 100 | 350 | 220 | 180 | 158 | 20 | 3 | 8-17.5 | 416 | 320 |
| 125 | 400 | 250 | 210 | 184 | 22 | 33 | 8-17.5 | 467 | 360 |
| 150 | 480 | 285 | 240 | 212 | 24 | 3 | 8-22 | 525 | 360 |
| 200 | 600 | 340 | 295 | 268 | 26 | 3 | 12-22 | 611 | 500 |
截止閥安裝與使用注意事項:
截止閥安裝注意事項
1.安裝施工小心,切忌撞擊脆性材料制作的截止閥。 2.安裝前,應將截止閥作一檢查,核對規格型號,鑒定有無損壞,尤其對于閥桿。還要轉動幾下,看是否歪斜,因為運輸過程中,易撞歪閥桿。還要閥內的雜物。 3.截止閥起吊時,繩子不要系在手輪或閥桿上,以免損壞這些部件,應該系在法蘭上。 4.對于截止閥所連接的管路,一定要清掃干凈。可用壓縮空氣吹去氧化鐵屑、泥砂、焊渣和其他雜物。這些雜物,不但容易擦傷截止閥的密封面,其中大顆粒雜物(如焊渣),還能堵死小截止閥,使其失效。
截止閥使用注意事項:
1.200℃以上的高溫閥門,由于安裝時處于常溫,而正常使用后,溫度升高,螺栓受熱膨脹,間隙加大,所以再次擰緊,叫做"熱緊",操作人員要注意這一工作,否則容易發生泄露。 2.天氣寒冷時,水閥長期閉停,應將閥后積水排除。汽閥停汽后,也要排除凝結水。閥底有如絲堵,可將它打開排水。 3.非金屬截止閥,有的硬脆,有的強度較低,操作時,開閉力不能太大,尤其不能使猛勁。還要注意辟免物件磕碰。 4.新截止閥使用時,填料不要壓得太緊,以不漏為度,以免閥桿受壓太大,加快磨損,而又啟閉費勁。








