

T40H型給水回轉式調節閥PN16~PN100
產品概述: T40H型PN16~PN100給水回轉式調節閥由閥體、閥座、閥瓣、閥桿、閥蓋等零件組成。它安裝在油、水等管路上,通過轉動圓筒形閥瓣來改變閥瓣與閥座所形成的窗口面積的大小,從而實現調節流量的目的。 調節閥 的啟閉角度為60,由安裝在調節閥上方的開...
- 產品詳情
產品概述:
T40H型PN16~PN100給水回轉式調節閥由閥體、閥座、閥瓣、閥桿、閥蓋等零件組成。它安裝在油、水等管路上,通過轉動圓筒形閥瓣來改變閥瓣與閥座所形成的窗口面積的大小,從而實現調節流量的目的。調節閥的啟閉角度為60°,由安裝在調節閥上方的開度指示板來指示。介質溫度:0~170℃。 給水回轉式調節閥,回轉式調節閥,調節閥。產品主要零件材料:
| 零件名稱 | 閥體 | 閥蓋 | 閥座、閥瓣、閥桿 |
| 主要材料 | 灰鑄鐵、鑄鋼 | 灰鑄鐵、鑄鋼 | 不銹鋼 |
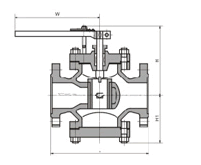
產品外形結構尺寸:
| 公稱壓力(MPa) | 尺 寸(mm) | |||||||||||||
| DN | 20 | 25 | 32 | 40 | 50 | 65 | 80 | 100 | 125 | 150 | 200 | 250 | 300 | |
| 1. 6 | L | 160 | 180 | 200 | 220 | 250 | 280 | 310 | 350 | 400 | 450 | 500 | 650 | 800 |
| L1 | 140 | 150 | 180 | 200 | 230 | 240 | 270 | 300 | 350 | 380 | 440 | 500 | 650 | |
| H | 180 | 200 | 205 | 210 | 230 | 230 | 250 | 250 | 290 | 300 | 325 | 330 | 450 | |
| H1 | 90 | 100 | 107 | 113 | 120 | 125 | 140 | 150 | 190 | 205 | 270 | 270 | 330 | |
| 2. 5 | L | 160 | 180 | 200 | 220 | 250 | 280 | 310 | 350 | 400 | 450 | 500 | 650 | 800 |
| L1 | 150 | 160 | 180 | 210 | 245 | 260 | 290 | 320 | 370 | 410 | 480 | 540 | 700 | |
| H | 180 | 200 | 205 | 210 | 230 | 240 | 250 | 280 | 290 | 300 | 325 | 330 | 450 | |
| H1 | 90 | 100 | 100 | 120 | 120 | 130 | 150 | 150 | 190 | 205 | 270 | 270 | 335 | |
| 4. 0 | L | 180 | 200 | 220 | 240 | 270 | 300 | 330 | 380 | 450 | 500 | 550 | 650 | 800 |
| L1 | 150 | 160 | 190 | 210 | 245 | 270 | 300 | 330 | 380 | 420 | 500 | 560 | 720 | |
| H | 180 | 200 | 205 | 210 | 230 | 240 | 250 | 290 | 300 | 310 | 335 | 350 | 470 | |
| H1 | 90 | 100 | 110 | 113 | 120 | 130 | 150 | 170 | 190 | 210 | 220 | 290 | 360 | |
| 6. 4 | L | 180 | 200 | 220 | 240 | 270 | 300 | 330 | 380 | 450 | 500 | 550 | 650 | 800 |
| L1 | 160 | 170 | 200 | 230 | 260 | 290 | 320 | 350 | 400 | 440 | 530 | 600 | 760 | |
| H | 185 | 210 | 220 | 225 | 250 | 250 | 260 | 300 | 310 | 320 | 340 | 360 | 480 | |
| H1 | 100 | 110 | 110 | 135 | 35 | 140 | 160 | 180 | 200 | 220 | 230 | 300 | 370 | |
| 10. 0 | L | 180 | 200 | - | - | 300 | 315 | 380 | 400 | - | 450 | - | - | - |
| L1 | 180 | 200 | - | - | 280 | - | 380 | 4700 | - | 414 | - | - | - | |
| H | 150 | 165 | - | - | 240 | - | 270 | 280 | - | 360 | - | - | - | |
| H1 | 105 | 115 | - | - | 130 | - | 190 | 190 | - | 250 | - | - | - | |
法蘭主要連接尺寸:
| 公稱通徑DN | 連接尺寸 | ||||||||||||||
| PN1.6MPa | PN2.5MPa | PN4.0MPa | |||||||||||||
| D | K | n-Φ | d | C | D | K | n-Φ | d | C | D | K | n-Φ | d | C | |
| 15 | 95 | 65 | 44 | 45 | 14 | 95 | 65 | 44 | 45 | 16 | 95 | 65 | 44 | 40 | 16 |
| 20 | 105 | 75 | 44 | 55 | 14 | 105 | 75 | 44 | 55 | 16 | 105 | 75 | 44 | 51 | 16 |
| 25 | 115 | 85 | 44 | 65 | 14 | 115 | 85 | 44 | 65 | 16 | 115 | 85 | 44 | 58 | 16 |
| 32 | 135 | 100 | 48 | 78 | 16 | 135 | 100 | 48 | 78 | 18 | 135 | 100 | 48 | 66 | 18 |
| 40 | 145 | 110 | 48 | 85 | 16 | 145 | 110 | 48 | 85 | 18 | 145 | 110 | 48 | 76 | 18 |
| 50 | 160 | 125 | 48 | 100 | 16 | 160 | 125 | 48 | 100 | 20 | 160 | 125 | 48 | 88 | 20 |
| 65 | 180 | 145 | 48 | 120 | 18 | 180 | 145 | 88 | 120 | 22 | 180 | 145 | 88 | 110 | 22 |
| 80 | 195 | 160 | 88 | 135 | 20 | 195 | 160 | 88 | 135 | 22 | 195 | 160 | 88 | 121 | 22 |
| 100 | 215 | 180 | 88 | 155 | 20 | 230 | 190 | 8-23 | 160 | 24 | 230 | 190 | 8-23 | 150 | 24 |
| 125 | 245 | 210 | 88 | 185 | 22 | 270 | 220 | 8-25 | 188 | 20 | 270 | 220 | 8-25 | 176 | 28 |
| 150 | 280 | 240 | 8-23 | 210 | 24 | 300 | 250 | 8-25 | 218 | 30 | 300 | 250 | 8-25 | 204 | 30 |
| 200 | 335 | 295 | 12-23 | 265 | 26 | 360 | 310 | 12-25 | 278 | 34 | 375 | 320 | 12-30 | 260 | 38 |
| 250 | 405 | 355 | 12-25 | 320 | 30 | 425 | 370 | 12-30 | 332 | 36 | 445 | 385 | 12-34 | 313 | 42 |
| 300 | 460 | 410 | 12-25 | 375 | 30 | 485 | 430 | 16-30 | 390 | 40 | 510 | 450 | 16-34 | 364 | 46 |
| 350 | 520 | 470 | 16-25 | 435 | 34 | 550 | 490 | 16-34 | 448 | 44 | 570 | 510 | 16-34 | 422 | 52 |
| 400 | 580 | 525 | 16-30 | 485 | 36 | 610 | 550 | 16-34 | 505 | 48 | 585 | 585 | 16-41 | 474 | 58 |
| 500 | 705 | 650 | 20-34 | 608 | 44 | 730 | 660 | 20-41 | 610 | 52 | 670 | 670 | 20-48 | 576 | 62 |
產品外形結構尺寸圖:

聲明:本文中所有文字、數據、圖片均只適用于參考,T40H型給水回轉式調節閥PN16~PN100性能參數、結構尺寸參數、價格等詳情,請聯系我們,電話:021-80392609。
-

不銹鋼電動調節針閥 高精度小口徑小流量 高壓智能防爆
參數 名稱: 調節型電動針型閥 電壓: 24V/220V/380V 公稱通徑: DN8mm-DN20 ; 公稱壓力:...
-

GHJ991W-16P電動針型調節閥 不銹鋼卡套連接信號輸
*** 滬工恒 公稱直徑 6cm 數量 560個 是否支持加工定制 是 是否進口 否 包裝規格 DN6 ...
-

微型電動球閥 不銹鋼內螺紋 絲扣微型閥 小型調節球形
*** 滬工恒 公稱直徑 15cm 數量 450個 是否支持加工定制 是 是否進口 否 包裝規格 DN1...
-

GHY43F衛生級快裝式減壓閥 不銹鋼卡盤卡箍卡套閥
*** 滬工恒 數量 580個 是否支持加工定制 是 是否進口 否 包裝規格 DN40-DN50 產地 蘇...


