

PZ641H型氣動鋼制排渣閘閥PN16~PN63
產品說明: PZ641H型氣動鋼制排渣閘閥是法蘭連接、明桿楔式剛性單閘板閥,閥座密封面材料為碳素鋼堆焊鐵基合金,公稱壓力為PN16~PN63,閥體材料為碳素鋼的排渣 閘閥 。 產品結構特點: 1、采用中法蘭螺栓連接,支管兩端為法蘭連接或對焊連接。 2、啟閉件采...
- 產品詳情
產品說明:
PZ641H型氣動鋼制排渣閘閥是法蘭連接、明桿楔式剛性單閘板閥,閥座密封面材料為碳素鋼堆焊鐵基合金,公稱壓力為PN16~PN63,閥體材料為碳素鋼的排渣閘閥。
產品結構特點:
1、采用中法蘭螺栓連接,支管兩端為法蘭連接或對焊連接。
2、啟閉件采用半密封副強制密封,性能***良。
3、密封副材料為耐磨陶瓷或耐磨合金,耐磨性強,耐磨性強、耐用沖蝕、耐擦傷、摩擦力小、密封可靠。
4、閥體出口流道結型合理,不存渣,啟閉靈活,不卡阻。
5、閥桿經調質和表面氮化處理,有良好的搞腐蝕性,抗擦傷性和耐磨性。
6、中大口徑設置滾動軸承,啟閉輕松。
安裝注意事項及要點:
1、手輪、手柄及傳動機構均不允許作起吊用,并嚴禁碰撞。
2、雙閘板閘閥應垂直安裝(即閥桿處于垂直位置,手輪在頂部)。
3、帶有旁通閥的閘閥在開啟前應先打開旁通閥(以平衡進出口的壓差及減小開啟力)。
4、帶傳動機構的閘閥,按產品使用說明書的規定安裝。
5、如果閥門經常開關使用,每月到少潤滑一次。
6、安裝位置、高度、進出口方向符合設計要求,連接應牢固緊密。
7、安裝在保溫管道上的各類手動閥門,手柄均不得向下。
8、帶傳動機構的閘閥,按產品使用說明書的規定安裝。
9、閥門安裝前進行外觀檢查,閥門的銘牌應符合現行國家標準《通用閥門標志》GB12220的規定。對于工作壓力大于1.0MPa及在主干管上起到切斷作用的閥門,安裝前應進行強度和嚴密性能試驗,合格后方準使用。強度試驗時,試驗壓力為公稱壓力的1.5倍,持續時間不少于5min,閥門殼體、填料應無滲漏為合格。嚴密性試驗時,試驗壓力為公稱壓力的1.1倍;試驗壓力在試驗持續的時間應符合GB50243標準要求,以閥瓣密封面無滲漏為合格。
PZ641H型氣動鋼制排渣閘閥是法蘭連接、明桿楔式剛性單閘板閥,閥座密封面材料為碳素鋼堆焊鐵基合金,公稱壓力為PN16~PN63,閥體材料為碳素鋼的排渣閘閥。
產品結構特點:
1、采用中法蘭螺栓連接,支管兩端為法蘭連接或對焊連接。
2、啟閉件采用半密封副強制密封,性能***良。
3、密封副材料為耐磨陶瓷或耐磨合金,耐磨性強,耐磨性強、耐用沖蝕、耐擦傷、摩擦力小、密封可靠。
4、閥體出口流道結型合理,不存渣,啟閉靈活,不卡阻。
5、閥桿經調質和表面氮化處理,有良好的搞腐蝕性,抗擦傷性和耐磨性。
6、中大口徑設置滾動軸承,啟閉輕松。
產品性能參數:
| 型號 | PN | 工作壓力/MPa | 適用溫度/℃ | 適用介質 |
|---|---|---|---|---|
| PZ641H-16C | 16 | 1.6 | ≤100 | 灰渣水混合物(灰水比 1:1:5 粒度≤50毫米) |
| PZ641H-25 | 25 | 2.5 | ||
| PZ641H-40 | 40 | 4.0 | ||
| PZ641H-63 | 63 | 6.3 |
產品零部件材料:
| 型號 | 材料 | |||||
|---|---|---|---|---|---|---|
| 閥體、閥蓋 | 閘板 | 閥體密封圈 | 閥桿 | 墊片 | 填料 | |
| PZ641H-16C | 碳素鋼 | 碳素鋼堆焊鐵基合金 | 鉻不銹鋼 | 橡膠石棉板 | 石棉石墨 | |
| PZ641H-25 | ||||||
| PZ641H-40 | ||||||
| PZ641H-63 | ||||||
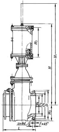
產品外形及結構尺寸:
| DN | L | D | D1 | D2 | z×Φd | b | f | H3 | H2 | H | H1 | 重量/kg |
|---|---|---|---|---|---|---|---|---|---|---|---|---|
| 100 | 300 | 220 | 180 | 158 | 8×Φ18 | 24 | 3 | 265 | 120 | 715 | 840 | 195 |
| 150 | 350 | 285 | 240 | 212 | 8×Φ22 | 28 | 3 | 290 | 162 | 945 | 1205 | 258 |
| 200 | 400 | 340 | 295 | 268 | 12×Φ22 | 30 | 3 | 307 | 200 | 1245 | 1545 | 344 |
| 250 | 450 | 405 | 355 | 320 | 12×Φ26 | 32 | 3 | 454 | 220 | 1550 | 1850 | 438 |
| 300 | 500 | 460 | 410 | 370 | 12×Φ26 | 34 | 4 | 610 | 260 | 1620 | 1980 | 630 |
| 350 | 550 | 520 | 470 | 430 | 16×Φ26 | 38 | 4 | 630 | 290 | 1690 | 2045 | 821 |
| 400 | 600 | 580 | 525 | 480 | 16×Φ30 | 40 | 4 | 645 | 338 | 1805 | 2205 | 940 |
| 450 | 650 | 640 | 585 | 532 | 20×Φ30 | 40 | 4 | 675 | 360 | 2015 | 2466 | 1019 |
| 500 | 700 | 715 | 650 | 585 | 20×Φ33 | 42 | 4 | 695 | 400 | 2115 | 2615 | 1138 |
| DN | L | D | D1 | D2 | z×Φd | b | f | H3 | H2 | H | H1 | 重量/kg |
|---|---|---|---|---|---|---|---|---|---|---|---|---|
| 150 | 350 | 300 | 250 | 212 | 8×Φ26 | 30 | 3 | 275 | 132 | 720 | 860 | 226 |
| 200 | 400 | 360 | 310 | 278 | 12×Φ26 | 34 | 3 | 300 | 200 | 950 | 1240 | 298 |
| 250 | 450 | 425 | 370 | 335 | 16×Φ30 | 36 | 3 | 318 | 220 | 1250 | 1580 | 394 |
| 300 | 500 | 485 | 430 | 390 | 16×Φ30 | 40 | 4 | 464 | 260 | 1550 | 1890 | 498 |
| 350 | 550 | 555 | 490 | 450 | 16×Φ33 | 40 | 4 | 630 | 290 | 1630 | 2070 | 700 |
| 400 | 600 | 620 | 550 | 505 | 16×Φ36 | 40 | 4 | 650 | 338 | 1706 | 2265 | 901 |
| 450 | 650 | 670 | 600 | 555 | 20×Φ36 | 42 | 4 | 665 | 360 | 1740 | 2525 | 4036 |
| 500 | 700 | 730 | 660 | 615 | 20×Φ36 | 44 | 4 | 695 | 400 | 2045 | 2685 | 1119 |
| 600 | 800 | 845 | 770 | 720 | 20×Φ39 | 46 | 4 | 710 | 437 | 2165 | 2740 | 1238 |
| DN | L | D | D1 | D2 | z×Φd | b | f | H3 | H2 | H | H1 | 重量/kg |
|---|---|---|---|---|---|---|---|---|---|---|---|---|
| 150 | 450 | 300 | 250 | 104 | 8×Φ26 | 32 | 3.5 | 285 | 184 | 740 | 880 | 256 |
| 200 | 550 | 375 | 320 | 260 | 12×Φ30 | 38 | 3.5 | 310 | 224 | 970 | 1260 | 328 |
| 250 | 650 | 450 | 385 | 313 | 12×Φ33 | 38 | 3.5 | 627 | 245 | 1270 | 1600 | 424 |
| 300 | 750 | 545 | 450 | 364 | 16×Φ33 | 42 | 3.5 | 474 | 276 | 1580 | 1920 | 538 |
| 350 | 850 | 580 | 510 | 422 | 16×Φ36 | 48 | 4 | 640 | 310 | 1660 | 2100 | 740 |
| 400 | 950 | 660 | 585 | 172 | 16×Φ39 | 52 | 4 | 660 | 340 | 1746 | 2295 | 750 |
| DN | L | D | D1 | D2 | z×Φd | b | f | H3 | H2 | H | H1 | 重量/kg |
|---|---|---|---|---|---|---|---|---|---|---|---|---|
| 150 | 450 | 345 | 280 | 204 | 8×Φ33 | 36 | 3.5 | 295 | 184 | 760 | 900 | 286 |
| 200 | 550 | 415 | 345 | 260 | 12×Φ36 | 42 | 3.5 | 320 | 224 | 990 | 1280 | 358 |
| 250 | 650 | 470 | 400 | 313 | 12×Φ36 | 42 | 3.5 | 339 | 245 | 1290 | 1630 | 454 |
| 300 | 740 | 430 | 460 | 364 | 16×Φ36 | 46 | 3.5 | 584 | 276 | 1610 | 14950 | 478 |
| 350 | 850 | 600 | 525 | 422 | 16×Φ39 | 50 | 4 | 650 | 310 | 1690 | 2140 | 780 |
| 400 | 950 | 670 | 585 | 472 | 16×Φ42 | 60 | 4 | 670 | 340 | 1776 | 2345 | 811 |
產品外形及結構尺寸圖:

安裝注意事項及要點:
1、手輪、手柄及傳動機構均不允許作起吊用,并嚴禁碰撞。
2、雙閘板閘閥應垂直安裝(即閥桿處于垂直位置,手輪在頂部)。
3、帶有旁通閥的閘閥在開啟前應先打開旁通閥(以平衡進出口的壓差及減小開啟力)。
4、帶傳動機構的閘閥,按產品使用說明書的規定安裝。
5、如果閥門經常開關使用,每月到少潤滑一次。
6、安裝位置、高度、進出口方向符合設計要求,連接應牢固緊密。
7、安裝在保溫管道上的各類手動閥門,手柄均不得向下。
8、帶傳動機構的閘閥,按產品使用說明書的規定安裝。
9、閥門安裝前進行外觀檢查,閥門的銘牌應符合現行國家標準《通用閥門標志》GB12220的規定。對于工作壓力大于1.0MPa及在主干管上起到切斷作用的閥門,安裝前應進行強度和嚴密性能試驗,合格后方準使用。強度試驗時,試驗壓力為公稱壓力的1.5倍,持續時間不少于5min,閥門殼體、填料應無滲漏為合格。嚴密性試驗時,試驗壓力為公稱壓力的1.1倍;試驗壓力在試驗持續的時間應符合GB50243標準要求,以閥瓣密封面無滲漏為合格。
聲明:本文中所有文字、數據、圖片均只適用于參考,PZ641H型氣動鋼制排渣閘閥PN16~PN63性能參數、結構尺寸參數、價格等詳情,請聯系我們,電話:021-80392609。
-

GHPZS673H-10Q氣動雙填料密封刀閘閥 雙重密封刀閘閥
一、主要用途和性能: 1、GHPZ刀閘閥適用于粉體、漿液、顆粒、粉塵、污水、礦漿等固態...
-

GHPZ系列雙填料刀閘閥-氣動刀型漿液閥-帶保護罩氣動刀
*** : 滬工恒 型號 : 、GHPZ 連接形式 : 對夾 主體材料 : 不銹鋼 公稱通徑 : 50-1200 ...
-

PZ941H電動排渣閘閥PN16~PN64
產品說明: PZ941H電動排渣閘閥適用于工作壓力 1.6~6.4MPa,工作溫度 0~100℃ 的火力...
-

Z962Y-P54l70v/Z962Y-P54200v高溫高壓電站雙閘板鉻鉬
產品概述 Z962Y-P54l70v Z962Y-P54200v高溫高壓電站雙閘板鉻鉬鋼 電動閘閥 也稱電站專...


