

Z61H/Y/W型鑄鋼承插焊楔式閘閥PN100~PN160
產品說明: Z61H/Y/W型鑄鋼承插焊楔式閘閥PN100~PN160驅動方式為手動,連接方式為承插焊連接形式,閥板為明桿楔式剛性單閘板,閥座密封面材料為合金(Z61H-100~160 Z61Y-100~160 Z61Y-100P~160P Z61Y-100I~160I)、不銹鋼(Z61H-100P~160P Z61W-100P~160...
產品型號:Z61H、Z61Y、Z61W
產品口徑(DN):15~40(mm)
產品壓力(PN):10.0~16.0(Mpa)
更新日期:2015-08-10
免費詢價
24小時免費咨詢電話021-80392609
- 產品詳情
產品說明:
Z61H/Y/W型鑄鋼承插焊楔式閘閥PN100~PN160驅動方式為手動,連接方式為承插焊連接形式,閥板為明桿楔式剛性單閘板,閥座密封面材料為合金(Z61H-100~160 Z61Y-100~160 Z61Y-100P~160P Z61Y-100I~160I)、不銹鋼(Z61H-100P~160P Z61W-100P~160P),公稱壓力為PN100~PN160,閥體材料為碳素鋼(Z61H-100~160)、不銹鋼(Z61H-100P~160P Z61W-100P~160P Z61Y-100P~160P)、合金鋼(Z61Y-100~160 Z61Y-100I~160I)的閘閥。產品性能參數:
| 型號 | PN | 工作壓力/MPa | 適用溫度/℃ | 適用介質 |
|---|---|---|---|---|
| Z61H-100~160 | 100~160 | 10.0~16.0 | ≤425 | 水、蒸汽、油品 |
| Z61H-100P~160P | ||||
| Z61Y-100~160 | ||||
| Z61W-100P~160P | ≤150 | 弱腐蝕性介質 | ||
| Z61Y-100P~160P | ||||
| Z61Y-100I~160I | ≤550 | 蒸汽、油品 |
產品零部件材料:
| 型號 | 材料 | |||
|---|---|---|---|---|
| 閥體、閥蓋、閘板 | 閥桿 | 密封面 | 填料 | |
| Z61H-100~160 | 碳素鋼 | 鉻不銹鋼 | 堆焊鐵基合金 | 石棉石墨或柔性石墨 |
| Z61H-100P~160P | 鉻鎳鈦不銹鋼 | 鉻不銹鋼 | ||
| Z61Y-100~160 | Cr5Mo | 堆焊硬質合金 | ||
| Z61W-100P~160P | 鉻鎳鈦不銹鋼 | 鉻鎳鈦不銹鋼 | 本體材料 | 聚四氟乙烯 |
| Z61Y-100P~160P | 堆焊硬質合金 | |||
| Z61Y-100I~160I | 鉻鉬合金鋼 | 鉻鉬合金鋼 | 堆焊硬質合金 | 柔性石墨 |
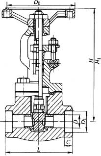
產品外形結構尺寸:
| DN | L | D | D1 | C | H | H1 | D0 | 重量/kg |
|---|---|---|---|---|---|---|---|---|
| 15 | 90 | 36 | 22.5 | 10 | 230 | 250 | 140 | 3.9 |
| 20 | 110 | 44 | 28.5 | 11 | 260 | 288 | 160 | 5.6 |
| 25 | 120 | 52 | 34.5 | 12 | 280 | 310 | 160 | 8 |
| 32 | 130 | 62 | 43 | 14 | 312 | 350 | 200 | 12 |
| 40 | 150 | 70 | 49 | 15 | 350 | 395 | 240 | 16 |
| 50 | 170 | 90 | 61 | 16 | 382 | 440 | 280 | 22 |
產品外形結構尺寸圖:

安裝注意事項及要點:
1、手輪、手柄及傳動機構均不允許作起吊用,并嚴禁碰撞。2、雙閘板閘閥應垂直安裝(即閥桿處于垂直位置,手輪在頂部)。
3、帶有旁通閥的閘閥在開啟前應先打開旁通閥(以平衡進出口的壓差及減小開啟力)。
4、帶傳動機構的閘閥,按產品使用說明書的規定安裝。
5、如果閥門經常開關使用,每月到少潤滑一次。
6、安裝位置、高度、進出口方向符合設計要求,連接應牢固緊密。
7、安裝在保溫管道上的各類手動閥門,手柄均不得向下。
8、帶傳動機構的閘閥,按產品使用說明書的規定安裝。
9、閥門安裝前進行外觀檢查,閥門的銘牌應符合現行國家標準《通用閥門標志》GB12220的規定。對于工作壓力大于1.0MPa及在主干管上起到切斷作用的閥門,安裝前應進行強度和嚴密性能試驗,合格后方準使用。強度試驗時,試驗壓力為公稱壓力的1.5倍,持續時間不少于5min,閥門殼體、填料應無滲漏為合格。嚴密性試驗時,試驗壓力為公稱壓力的1.1倍;試驗壓力在試驗持續的時間應符合GB50243標準要求,以閥瓣密封面無滲漏為合格。
聲明:本文中所有文字、數據、圖片均只適用于參考,Z61H/Y/W型鑄鋼承插焊楔式閘閥PN100~PN160性能參數、結構尺寸參數、價格等詳情,請聯系我們,電話:021-80392609。
-

GHPZS673H-10Q氣動雙填料密封刀閘閥 雙重密封刀閘閥
一、主要用途和性能: 1、GHPZ刀閘閥適用于粉體、漿液、顆粒、粉塵、污水、礦漿等固態...
-

GHPZ系列雙填料刀閘閥-氣動刀型漿液閥-帶保護罩氣動刀
*** : 滬工恒 型號 : 、GHPZ 連接形式 : 對夾 主體材料 : 不銹鋼 公稱通徑 : 50-1200 ...
-

PZ941H電動排渣閘閥PN16~PN64
產品說明: PZ941H電動排渣閘閥適用于工作壓力 1.6~6.4MPa,工作溫度 0~100℃ 的火力...
-

Z962Y-P54l70v/Z962Y-P54200v高溫高壓電站雙閘板鉻鉬
產品概述 Z962Y-P54l70v Z962Y-P54200v高溫高壓電站雙閘板鉻鉬鋼 電動閘閥 也稱電站專...


