
閘閥的特點和閘閥的分類更新日期:2016-11-14

閘閥的特點
閘閥具有如下***點:
·流體阻力小:閥體內部介質通道是直通的,介質流經閘閥時不改變其流動方向。
·啟閉所需的力矩較小;
·可以使用在介質向兩方向流動的環網管路上,即介質的流向不受限制。
·形體結構較簡單,制造工藝性較好。
·密封性能好:全開時密封面受沖蝕較小。
閘閥的缺點
·所需啟閉時間長,外形尺寸和開啟高度都較大,安裝的空間較大。
·需較長時間才能開啟或關閉。
·在啟閉時,密封面間有相對摩擦,磨損較大,甚到在高溫時易引起擦傷現象。
·一般閘閥都有兩個密封副,給加工、研磨和維修增加了一些困難。
閘閥分類
根據結構形式分,閘閥可分為以下類型:
閘閥根據閥桿結構可分為明桿閘閥(升降桿閘閥)和暗桿閘閥(旋轉桿閘閥)。
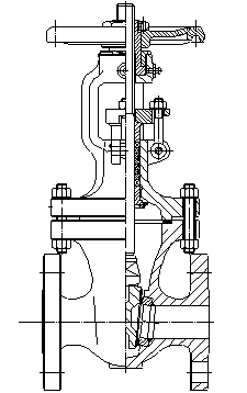
明桿閘閥(升降桿閘閥):通過旋轉閥桿螺母帶動閥桿升降(不旋轉)來實現閘板啟閉的閘閥。這種結構閘閥對閥桿潤滑有利,閘板開度清楚,閥桿螺紋與閥桿螺母不與介質接觸,不受介質溫度和腐蝕性的影響。示例如下:

明桿閘閥示例
暗桿閘閥(旋轉桿閘閥):閥桿螺母在閥體內與介質接觸,通過旋轉閥桿來實現閘板啟閉的閘閥。這種結構閘閥,閥門的高度尺寸小,但它的啟閉行程難以控制,需增加指示器,閥桿螺紋及閥桿螺母與介質接觸,要受介質溫度和腐蝕性的影響,因而適用于非腐蝕性介質以及外界環境條件較差的場合。示例如下:

螺紋連接暗桿閘閥示例
根據閘板的構造,閘閥可分為平行式閘閥和楔式閘閥。
平行式閘閥:兩個密封面相互平行,且與閥體通道線垂直的閘閥。其啟閉件(閘板)可以是單閘板或是帶有撐開機構的雙閘板。平板閘閥流阻小,不縮口的平板閘閥其流阻與短直管相似。帶導流孔的平板閘閥安裝在管路上還可直接用清管器進行清管。同時,由于閘板啟閉時在兩閥座密封面滑動,可適用于帶懸浮顆粒的介質。另外,平板閘閥不會因為閥桿熱伸長而使密封面過載。但平板閘閥存在以下缺點:
- 當介質壓力較低時,金屬密封面的密封力不足以達到滿意的密封性能;
- 當介質壓力高時,經常啟閉可能使密封面磨損過大;
- 閘板在切斷高速和高密度介質時,會產生劇烈振動;
d、在圓形流道上橫向運動的圓形閘板只有當它處在閥門關閉位置的50%時,才對流量的控制較敏感。
楔式閘閥:兩個密封面成楔形的閘閥。使用楔形的目的是為了提高輔助密封載荷,實現既能對高的介質壓力密封,也能低的介質壓力密封。楔式閘閥的閥體上設有導向機構(導向筋),可防止閘板在開啟或關閉時旋轉,確保閘板與閥座的密封面相應對準。同時,楔式閘閥在關閉之前不與閥座摩擦,從而減少密封面的磨損。
但楔式閘閥存在以下缺點:
- 密封面易夾雜流動介質中固體顆粒;
- 閥桿的熱膨脹可能使密封面產生過載;
- 閘板不能設置導流孔。
根據JB/T 308閘閥結構形式代號如下:
閘閥結構形式代號
|
結構形式 |
代號 |
|||
|
閥桿升降式 |
楔式閘板 |
彈性閘板 |
0 |
|
|
剛性閘板 |
單閘板 |
1 |
||
|
雙閘板 |
2 |
|||
|
平行式閘板 |
單閘板 |
3 |
||
|
雙閘板 |
4 |
|||
|
閥桿非升降式(暗桿) |
楔式閘板 |
單閘板 |
5 |
|
|
雙閘板 |
6 |
|||
|
平行式閘板 |
單閘板 |
7 |
||
|
雙閘板 |
8 |
|||






