

H64Y型電站焊接止回閥1500(Lb)~2500(Lb)
產品概述: H64Y型電站焊接止回閥1500(Lb)~2500(Lb)適用于 Class1500~2500Lb,工作溫度 -29~570℃ 的石油、化工、火力電站等各種工況的管路上。 主要外形和連接尺寸: H64Y-1500(Lb)電站焊接止回閥主要外形和連接尺寸(mm) 公稱通徑PNS(in) 外形尺寸和連...
產品型號:H64Y
產品口徑(DN):2~14(")(mm)
產品壓力(PN):1500Lb~2500Lb(Mpa)
更新日期:2015-07-02
免費詢價
24小時免費咨詢電話021-80392609
- 產品詳情
產品概述:
H64Y型電站焊接止回閥1500(Lb)~2500(Lb)適用于 Class1500~2500Lb,工作溫度 -29~570℃ 的石油、化工、火力電站等各種工況的管路上。
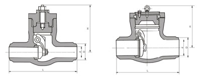
主要外形和連接尺寸:
產品外形結構尺寸圖:
安裝注意事項:
止回閥的安裝應注意以下事頂
1、在管線中不要使止回閥承受重量,大型的止回閥應獨立支撐,使之不受管系產生的壓力的影響。
2、安裝時注意介質流動的方向應與閥體所票箭頭方向一致。
3、升降式垂直瓣止回閥應安裝在垂直管道上。
4、升降式水平瓣止回閥應安裝在水平管道上。
H64Y型電站焊接止回閥1500(Lb)~2500(Lb)適用于 Class1500~2500Lb,工作溫度 -29~570℃ 的石油、化工、火力電站等各種工況的管路上。
主要外形和連接尺寸:
| 公稱通徑PNS(in) | 外形尺寸和連接尺寸 | 重量 | ||
| d | L | H | ||
| 2 | 50 | 330 | 240 | 40 |
| 3 | 60 | 368 | 305 | 60 |
| 4 | 80 | 457 | 315 | 95 |
| 5 | 96 | 533 | 409 | 170 |
| 6 | 118 | 610 | 465 | 186 |
| 8 | 147 | 762 | 528 | 415 |
| 10 | 180 | 914 | 613 | 658 |
| 12 | 222 | 1041 | 680 | 1200 |
| 14 | 254 | 1118 | 745 | 1638 |
| 公稱通徑PNS(in) | 外形尺寸和連接尺寸 | 重量 | ||
| d | L | H | ||
| 3 | 54 | 368 | 297 | 44 |
| 4 | 70 | 457 | 385 | 110 |
| 5 | 86 | 533 | 410 | 130 |
| 6 | 104 | 610 | 455 | 192 |
| 8 | 130 | 762 | 557 | 466 |
| 10 | 162 | 914 | 615 | 730 |
| 12 | 210 | 1041 | 715 | 1120 |
| 14 | 234 | 1118 | 790 | 1495 |
| 16 | 264 | 1245 | 815 | 1950 |
| 18 | 304 | 1397 | 815 | 2400 |
產品外形結構尺寸圖:

止回閥的安裝應注意以下事頂
1、在管線中不要使止回閥承受重量,大型的止回閥應獨立支撐,使之不受管系產生的壓力的影響。
2、安裝時注意介質流動的方向應與閥體所票箭頭方向一致。
3、升降式垂直瓣止回閥應安裝在垂直管道上。
4、升降式水平瓣止回閥應安裝在水平管道上。
聲明:本文中所有文字、數據、圖片均只適用于參考,H64Y型電站焊接止回閥1500(Lb)~2500(Lb)性能參數、結構尺寸參數、價格等詳情,請聯系我們,電話:021-80392609。



