

脫硫專用電動V型陶瓷調節球閥-配IQT電動執行機構
脫硫專用電動V型陶瓷調節球閥概述 脫硫專用電動V型陶瓷調節球閥是目前具有性的陶瓷調節球閥,采用全陶瓷結構形式,該V型陶瓷調節球閥適用于有強沖刷及耐磨合場合做調節裝置,排除原其他國外類似調節球閥諸多缺點。V型陶瓷調節球閥,以球閥的旋轉與閥座之...
產品型號:VQ947TC-16C
產品口徑(DN):DN15~200(mm)
產品壓力(PN):1.0~6.4Mpa(Mpa)
更新日期:2017-01-12
24小時免費咨詢電話021-80392609
- 產品詳情
脫硫專用電動V型陶瓷調節球閥概述

脫硫專用電動V型陶瓷調節球閥是目前具有性的陶瓷調節球閥,采用全陶瓷結構形式,該V型陶瓷調節球閥適用于有強沖刷及耐磨合場合做調節裝置,排除原其他國外類似調節球閥諸多缺點。V型陶瓷調節球閥,以球閥的旋轉與閥座之間的開度變化時介質流量控制與調節來滿足實際工況要求,閥門的流量特性等百分。V型陶瓷調節球閥適用工況有電廠脫硫脫硝,氣力除灰,下料,鋼廠煤渣下料,氯堿工業,三氯氫硅、四氯化硅、二氧化硅、硅粉氣力輸送,造紙等。
脫硫專用電動V型陶瓷調節球閥特點
V型陶瓷硬密封調節球閥,結構與O型陶瓷球閥相同,僅閥球通孔為V型結構,作為調節閥,除具有O型陶瓷硬密封球閥的耐腐蝕,耐磨損,零泄漏等***異性能外,還具有以下特點:
1、與普通O型球閥相比,V型球閥具有等百分比流量調節(對數)特性,可以更,更靈活地對介質進行流量調節,可調范圍大,調節速度快,維護簡單,極大節約用戶成本。
2、在閥門小開度工作時,不會產生啟跳、振蕩,具有微調功能,可以滿足很小流量的調節,且工作狀態十分穩定。
3、V型陶瓷球閥在開啟和關閉的過程中,球體的V形流道與閥座間具有剪切作用,可以將介質中含有的纖維、固體顆粒等切碎并除去,且結構陶瓷具有很好的自潔性,可防止密封面間積存雜物導致閥門卡死。
脫硫技術簡介
通過對國內外脫硫技術以及國內電力行業引進脫硫工藝試點廠情況的分析研究,目前脫硫方法一般可劃分為燃燒前脫硫、燃燒中脫硫和燃燒后脫硫等3類。 其中燃燒后脫硫,又稱煙氣脫硫(Flue gas desulfurization,簡稱FGD),在FGD技術中,按脫硫劑的種類劃分,可分為以下五種方法:以CaCO3(石灰石)為基礎的鈣法,以MgO為基礎的鎂法,以Na2SO3為基礎的鈉法,以NH3為基礎的氨法,以有機堿為基礎的有機堿法。世界上普
脫硫 遍使用的商業化技術是鈣法,所占比例在90%以上。 按吸收劑及脫硫產物在脫硫過程中的干濕狀態又可將脫硫技術分為濕法、干法和半干(半濕)法。濕法FGD技術是用含有吸收劑的溶液或漿液在濕狀態下脫硫和處理脫硫產物,該法具有脫硫反應速度快、設備簡單、脫硫效率高等***點,但普遍存在腐蝕嚴重、運行維護費用高及易造成二次污染等問題。 干法FGD技術的脫硫吸收和產物處理均在干狀態下進行,該法具有無污水廢酸排出、設備腐蝕程度較輕,煙氣在凈化過程中無明顯降溫、凈化后煙溫高、利于煙囪排氣擴散、二次污染少等***點,但存在脫硫效率低,反應速度較慢、設備龐大等問題。 半干法FGD技術是指脫硫劑在干燥狀態下脫硫、在濕狀態下再生(如水洗活性炭再生流程),或者在濕狀態下脫硫、在干狀態下處理脫硫產物(如噴霧干燥法)的煙氣脫硫技術。特別是在濕狀態下脫硫、在干狀態下處理脫硫產物的半干法,以其既有濕法脫硫反應速度快、脫硫效率高的***點,又有干法無污水廢酸排出、脫硫后產物易于處理的***勢而受到人們廣泛的關注。按脫硫產物的用途,可分為拋棄法和回收法兩種。
主要零件材料
| 脫硫專用電動V型陶瓷調節球閥主要零件材料表 | |
| 閥體 | WCB、304、316+陶瓷 |
| 閥芯 | 2Cr13、316、蒙乃爾、哈氏C |
| 閥座 | 陶瓷 |
| 球體 | 陶瓷 |
| 流道 | 陶瓷 |
| 填料 | 特種盤根 |
主要性能規范
| 脫硫專用電動V型陶瓷調節球閥主要性能規范表 | |
| 名稱 | V型陶瓷調節球閥 |
| 公稱通徑 | 15-250 |
| 公稱壓力 | 1.0、1.6、2.5、4.0 |
| 試驗壓力 | 強度1.0、1.6、2.5、4.0 |
| 泄漏等級 | Ⅵ |
| 適用溫度 | ≤80℃,≤100℃,≤150℃ |
| 適用介質 | 水、石灰石、石膏漿液、硫酸、鹽酸等腐蝕性介質 |
| 驅動方式 | 手動、電動、氣動 |
| 連接形式 | 法蘭 |
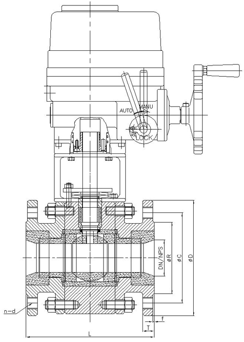
主要外形連接尺寸

| DN | D | C | R | T | f | n-d | H(Appx.) |
| 15 | 95 | 65 | 46 | 14 | 2 | 4-M12 | 85 |
| 20 | 105 | 75 | 56 | 16 | 2 | 4-M12 | 94 |
| 25 | 115 | 85 | 65 | 16 | 2 | 4-M12 | 98 |
| 32 | 135 | 100 | 76 | 18 | 2 | 4-M16 | 112 |
| 40 | 145 | 110 | 84 | 18 | 2 | 4-M16 | 124 |
| 50 | 160 | 125 | 99 | 20 | 2 | 4-M16 | 135 |
| 65 | 180 | 145 | 118 | 20 | 2 | 4-M16 | 156 |
| 80 | 195 | 160 | 132 | 20 | 2 | 8-M16 | 177 |
| 100 | 215 | 180 | 156 | 22 | 2 | 8-M16 | 207 |
| 125 | 250 | 210 | 184 | 22 | 2 | 8-M16 | 240 |
| 150 | 285 | 240 | 211 | 24 | 2 | 8-M20 | 240 |
| 200 | 340 | 295 | 266 | 24 | 2 | 12-M20 | —— |
IQT電動執行機構概述

IQT系列電動執行器用于控制0°-270°旋轉的閥門及其他同類產品,如蝶閥、球閥、風門、擋板閥、旋塞閥、百葉閥等,可以廣泛應用于石油、化工、水處理、船舶、造紙、電站、供熱、樓宇自控、輕工等各行業中。它以380V/220V/110V交流電源為驅動電源,以4-20mA電流信號或0-10V DC電壓信號為控制信號,可使閥門運動到所需位置,實現其自動化控制,輸出扭矩達5000N • IVU (該產品已獲得CE與防爆認證證書,產品質量具有保障)
IQT電動執行機構性能特點
1.殼體-殼體為硬質鋁合金.經陽極氧化處理和聚酯粉末涂層,耐腐蝕性強.防護等級為IP67, NEMA4和6.并有IP68和防爆型供選擇。
2.電機--全封閉式鼠籠式電機,體積小,扭距大,慣性力小,絕緣等級為F級,內置過熱保護開關,可防止過熱損壞電機。
3.手動結構••手輪的設計保證可靠、省力、體積小。不通電時,扳動離合器手柄可進行手動操作。通電時,離合器自動復位。(注:在電機不通電的狀況下,電動執行器將保持手動狀態)
4.指示器-指示器安裝在中心軸上,可以觀察閥門位置。透鏡采用凸透鏡設計,不積水,觀察更方便。
5.干燥器-用來控制溫度.防止由于溫度和天氣變化導致執行器內部水分凝結.保持內部電氣元件的干燥。
6.限位開關--機械,電子雙重限位。機械限位螺釘可調,可靠;電子限位開關由凸輪機構來控制,簡單的調整機構能精確并方便地設定位置.無需電池支持。(微動開關接點均為銀質觸點)
7.扭矩開關--可提供過載保護(IQT-005/008/010除外),在閥門卡澀,有異物時,自動斷開電機電源,更有效的保護閥門和電動執行器不受損壞。(出廠前已設定好,請用戶不要隨意更改設置)
8.自鎖--精密的雙蝸輪蝸桿機構可傳輸大扭矩,效率高,噪音低(50分貝 >,壽命長有自鎖功能,防止反轉,傳動部分穩定可靠,出廠已經加滿潤滑脂,使用無需再加油。
9.防脫螺栓--拆除外殼時.螺栓附在殼體上,不會脫落》外部螺栓均采為不銹鋼材質。
10.安裝-底部安裝尺寸符合IS05211標準.驅動軸套可拆下根據需要進行加工,適應性強。可以垂直安裝,也可以水平安裝。
11.線路--控制線路符合單相或三相電源標準,線路布置緊湊合理,接線端子可有效滿足各種附加功能的要求。閥開關到位均有無源接點輸出(可根據客戶要求另行加工。)
12.智能模塊-采用集成度高.功耗很低的單片機與模擬電路混合的控制板,更采用全金屬外掛式安裝,使執行器電機熱源與控制板有效隔離,很大程度地提高了軟件及硬件的抗干擾性能及耐溫性。
13.閥位數字顯示--執行器在打開或關閉過程中,閥位的變化在液晶屏上以大數宇方式實時顯示。
14.相序自動調整--智能型執行器自動檢測接入的三相電源相序.無需用戶考慮三相電源的相序問題。



