

Z47WF型燃氣閘閥(無泄漏燃氣平板閘閥)PN16~PN64
產品說明: Z47WF型燃氣閘閥(無泄漏燃氣 平板閘閥 )PN16~PN64專用于天然氣、液體石油氣煤氣、油品等,它以的設計、新穎的結構和良好的密封性能徹底解決了閥門因燃氣結焦而引起的關不嚴、開不動等問題,有效地提高了密封性能和使用壽命,真正達到零泄漏...
- 產品詳情
產品說明:
Z47WF型燃氣閘閥(無泄漏燃氣平板閘閥)PN16~PN64專用于天然氣、液體石油氣煤氣、油品等,它以的設計、新穎的結構和良好的密封性能徹底解決了閥門因燃氣結焦而引起的關不嚴、開不動等問題,有效地提高了密封性能和使用壽命,真正達到零泄漏。產品特點:
- 閥體采用鑄造結構。
- 閥座采用 O 形密封圈密封和施加預緊力的浮動閥座結構,使閥門進出口雙向密封;并且該結構的啟閉力矩僅為普通閥門的 1/2,能達到輕松開、關閥門。
- 閥座采用密封面上鑲嵌 PTFE,具有 PTFE 對金屬和金屬對金屬的雙重密封,PTFE 密封面同時閘板臟物的作用。
- 閥門的閘板,無論是全開或是全關始終與密封面吻合,密封面得到保護不受介質直接沖刷,從而延長使用壽命。
- 閥門在全開時,通道平滑為直線,流阻系數極小,無壓力損失,可通毛球清掃管線。
- 閥門關閉時能自動卸掉內腔高壓(詳見工作原理圖),保證使用。
- 采用封閉齒輪轉動啟閉指示機構,能長期清晰地反映閥門的啟閉情況。
- 直埋式閥門外表面采用環氧煤瀝青防腐處理,能與管線同壽命。
產品執行標準:
設計與制造:API 600;法蘭尺寸:ANSI B16.5;
結構長度:ANSI B16.10;
壓力 溫度:ANSI B16.34;
檢驗與試驗:API 598;
產品性能參數:
| 壓力等級 | 常溫試驗壓力(MPa) | 適用溫度 | 適用介質 | |||||
|---|---|---|---|---|---|---|---|---|
| 殼體試驗 | 左密封 | 右密封 | 低壓氣密封 | 普通型 | 抗硫型 | |||
|
公稱壓力 (MPa) |
1.6 | 2.4 | 1.76 | 1.76 | 0.6 | -29~121℃或按用戶要求 | 石油、天然氣、水等非腐蝕性介質 | 含H2S、Co2的石油、天然氣、水等腐蝕性介質 |
| 2.5 | 3.75 | 2.75 | 2.75 | 0.6 | ||||
| 4.0 | 6.0 | 4.4 | 4.4 | 0.6 | ||||
| 6.4 | 9.6 | 7.04 | 7.04 | 0.6 | ||||
| 磅級(Lb) | 150 | 3.0 | 2.2 | 2.2 | 0.6 | |||
| 300 | 7.5 | 5.5 | 5.5 | 0.6 | ||||
產品零部件材質:
| 序號 | 零件名稱 | 材料 |
|---|---|---|
| 1 | 排污堵頭 | 25 |
| 2 | 閥體 | WCB |
| 3 | 閘板 | 16Mn+ENP |
| 4 | 閥座 | 16Mn |
| 5 | O形圈 | NBR |
| 6 | 密封圈 | PTFE |
| 7 | 閥桿螺母 | ZQAL9-4 |
| 8 | 閥桿 | 1Cr13 |
| 9 | 墊片 | 柔性石墨+1Cr18Ni9 |
| 10 | 閥蓋 | WCB |
| 11 | 雙頭螺柱 | 35CrMo |
| 12 | 螺母 | 45 |
| 13 | O形圈 | NBR |
| 14 | 軸承 | 組件Package |
| 15 | 對開環 | 45 |
| 16 | 內六角螺釘 | 35 |
| 17 | 鍵 | 45 |
| 18 | 開關指示器 | PTFE+1Cr18Ni9 |
| 19 | 手輪 | Q23*** |
| 20 | 螺母 | 35 |
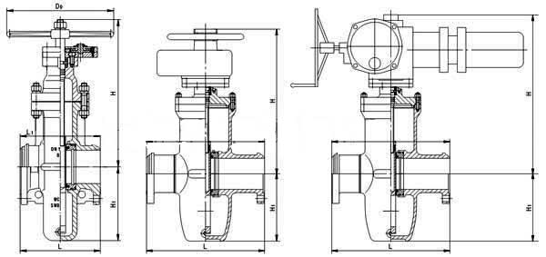
產品外形連接尺寸:
|
DN (mm) |
NPS (in) |
法蘭 | 對焊 | 手動 | 齒動 | 齒動裝置 | 電動 | 電動裝置 | ||||||
|---|---|---|---|---|---|---|---|---|---|---|---|---|---|---|
| L | L1 | H | H1 | D0 | H | H1 | D0 | H | H1 | D0 | ||||
| 25 | 1 | 165 | - | 85 | 228 | 180 | - | - | - | - | - | - | - | - |
| 32 | 11/4 | 165 | - | 103 | 231 | 180 | - | - | - | - | - | - | - | - |
| 40 | 11/2 | 178 | - | 115 | 240 | 250 | - | - | - | - | - | - | - | - |
| 50 | 2 | 178 | 216 | 130 | 255 | 250 | - | - | - | - | - | - | - | - |
| 65 | 21/2 | 190 | 241 | 160 | 355 | 300 | - | - | - | - | - | - | - | - |
| 80 | 3 | 203 | 283 | 180 | 360 | 300 | - | - | - | - | - | - | - | - |
| 100 | 4 | 229 | 305 | 214 | 400 | 300 | - | - | - | - | - | - | - | - |
| 125 | 5 | 254 | 381 | 257 | 460 | 350 | - | - | - | - | - | - | - | - |
| 150 | 6 | 267 | 403 | 300 | 500 | 350 | - | - | - | - | - | - | - | - |
| 200 | 8 | 292 | 419 | 388 | 570 | 350 | - | - | - | - | - | - | - | - |
| 250 | 10 | 330 | 457 | 475 | 680 | 400 | 475 | 700 | 350 | 0型 | 475 | 710 | 500 | SMC-03 |
| 300 | 12 | 356 | 502 | 547 | 750 | 450 | 547 | 870 | 350 | 0型 | 547 | 880 | 305 | SMC-00 |
| 350 | 14 | 381 | 572 | 625 | 875 | 450 | 625 | 995 | 450 | 1型 | 625 | 1015 | 305 | SMC-00 |
| 400 | 16 | 406 | 610 | 712 | 1000 | 500 | 712 | 1120 | 450 | 1型 | 712 | 1130 | 305 | SMC-00 |
| 450 | 18 | 432 | 660 | 785 | 1130 | 500 | 785 | 1280 | 450 | 1型 | 785 | 1360 | 305 | SMC-0 |
| 500 | 20 | 457 | 711 | 880 | 1200 | 600 | 880 | 1350 | 450 | 1型 | 880 | 1430 | 305 | SMC-0 |
| 600 | 24 | 508 | 813 | 1045 | 1420 | 800 | 1045 | 1570 | 500 | 2型 | 1045 | 1650 | 305 | SMC-1 |
| 700 | 28 | 610 | 914 | 1190 | 1650 | 800 | 1190 | 1800 | 500 | 2型 | 1190 | 1910 | 305 | SMC-1 |
| 800 | 32 | 660 | 914 | 1360 | 1880 | 1000 | 1360 | 2040 | 500 | 2型 | 1360 | 2140 | 305 | SMC-1 |
| 900 | 36 | 771 | 1016 | 1510 | 2100 | 1000 | 1510 | 2280 | 600 | 3型 | 1510 | 2390 | 458 | SMC-2 |
| 1000 | 40 | 811 | - | 1715 | 2300 | 1200 | 1715 | 2480 | 600 | 3型 | 1715 | 2590 | 458 | SMC-2 |
產品外形結構及尺寸圖:

安裝注意事項及要點:
1、手輪、手柄及傳動機構均不允許作起吊用,并嚴禁碰撞。2、雙閘板閘閥應垂直安裝(即閥桿處于垂直位置,手輪在頂部)。
3、帶有旁通閥的閘閥在開啟前應先打開旁通閥(以平衡進出口的壓差及減小開啟力)。
4、帶傳動機構的閘閥,按產品使用說明書的規定安裝。
5、如果閥門經常開關使用,每月到少潤滑一次。
6、安裝位置、高度、進出口方向符合設計要求,連接應牢固緊密。
7、安裝在保溫管道上的各類手動閥門,手柄均不得向下。
8、帶傳動機構的閘閥,按產品使用說明書的規定安裝。
9、閥門安裝前進行外觀檢查,閥門的銘牌應符合現行國家標準《通用閥門標志》GB12220的規定。對于工作壓力大于1.0MPa及在主干管上起到切斷作用的閥門,安裝前應進行強度和嚴密性能試驗,合格后方準使用。強度試驗時,試驗壓力為公稱壓力的1.5倍,持續時間不少于5min,閥門殼體、填料應無滲漏為合格。嚴密性試驗時,試驗壓力為公稱壓力的1.1倍;試驗壓力在試驗持續的時間應符合GB50243標準要求,以閥瓣密封面無滲漏為合格。
聲明:本文中所有文字、數據、圖片均只適用于參考,Z47WF型燃氣閘閥(無泄漏燃氣平板閘閥)PN16~PN64性能參數、結構尺寸參數、價格等詳情,請聯系我們,電話:021-80392609。




