

PGZ鑄鐵鑲銅方閘門
產品概述 PGZ鑄鐵鑲銅方閘門適用于市政、水利工程、工礦、企事業單位在給排水工程中,對水流的截止、疏通、調節水位等。本公司綜合國內外結構及工藝,對閘門經多次改進,現具有:密封性好、耐磨性強、安裝使用方便、壽命長等***點。 PGZ鑄鐵鑲銅方閘門機...
- 產品詳情
產品概述
PGZ鑄鐵鑲銅方閘門適用于市政、水利工程、工礦、企事業單位在給排水工程中,對水流的截止、疏通、調節水位等。本公司綜合國內外結構及工藝,對閘門經多次改進,現具有:密封性好、耐磨性強、安裝使用方便、壽命長等***點。
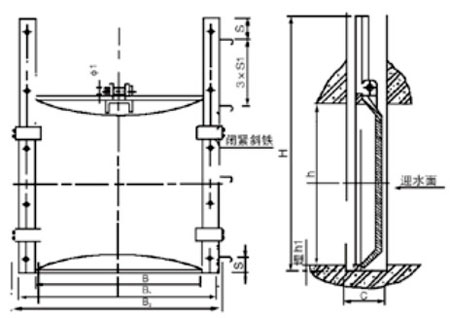
PGZ鑄鐵鑲銅方閘門機構工作原理
1、鑄鐵閘門主要由:
⑴門框、(2)門體、(3)傳動螺桿、(4)吊耳、(也可與門體為一體)、(5)軸導架、(6)啟閉裝置等。
2、工作原理
閘門門框與門體安裝在水下部位,門體沿門框在一定行程內做上下垂直方向往返運動。
啟閉機的螺桿通過軸銷與門體聯接,使門體上下做往復運動的動力來源于啟閉機,同時楔緊裝置運用楔塊可緊可松的工作原理,使門體下降到設定極限位置時與門框有效的貼合,起到止水作用,門體向上全部打開時,水則暢通,反之截止,也可半啟半閉,達到疏通、截止、調節水位之目的。
PGZ鑄鐵鑲銅方閘門外形及安裝尺寸


|
洞口尺寸 寬×高 |
B | h | B1 | B2 | B3 | S | S1 | Cl | Cl | C | C2 | C2 | C4 | C5 | h1 | f1 | 材料 |
配啟 閉機 (t) |
重量 (kg ) |
| 0.8×0.8 | 800 | 800 | 930 | 1000 | 1190 | 1200 | 200 | 800 | 150 | 250 | 12 | 90 | 80 | 50 | 20 | 25 | HT250 | 1 | 190 |
| 1×1 | 1000 | 1000 | 1140 | 1210 | 1400 | 1470 | 300 | 870 | 180 | 280 | 13 | 105 | 90 | 50 | 20 | 25 | HT250 | 2 | 320 |
| 1.5×1.5 | 1500 | 1500 | 1640 | 1720 | 1920 | 2280 | 300 | 560 | 180 | 280 | 17 | 105 | 170 | 55 | 25 | 28 | HT250 | 3 | 980 |
| 2×2 | 2000 | 2000 | 2180 | 2260 | 2460 | 2800 | 300 | .733 | 185 | 285 | 18 | 105 | 180 | 60 | 30 | 230 | HT250 | 5 | 2100 |
| 2.5×2.5 | 2500 | 2500 | 2720 | 2800 | 3000 | 3400 | 300 | 933 | 200 | 285 | 20 | 130 | 170 | 75 | 30 | 30 | HT250 | 8-10 | 3150 |
| 3×3 | 3000 | 3000 | 3220 | 3300 | 3500 | 4000 | 300 | 1133 | 210 | 300 | 20 | 130 | 210 | 75 | 30 | 35 | HT250 | 12-15 | 5690 |
| 3.5×3.5 | 3500 | 3500 | 3720 | 3800 | 4000 | 4500 | 300 | 1300 | 210 | 310 | 23 | 135 | 290 | 75 | 30 | 40 | HT300 | 20-25 | 7820 |
| 4×4 | 4000 | 4000 | 4250 | 4330 | 4530 | 5000 | 300 | 1467 | 210 | 310 | 25 | 150 | 290 | 90 | 30 | 40 | HT300 | 25-30 | 1200 |
| 4.5×4.5 | 4500 | 4500 | 4750 | 4830 | 5030 | 5500 | 300 | 1633 | 210 | 320 | 27 | 150 | 290 | 90 | 30 | 45 | HT300 | 30-40 | 15600 |
| 5×5 | 5000 | 5000 | 5300 | 5380 | 5580 | 6000 | 300 | 1800 | 230 | 330 | 30 | 175 | 320 | 100 | 35 | 45 | HT300 | 40-50 | 22100 |
| 5.5×5.5 | 5500 | 5500 | 5800 | 5880 | 6080 | 6500 | 300 | 1967 | 230 | 330 | 33 | 175 | 320 | 100 | 35 | 50 | HT300 | 50-60 | 26730 |
| 6×6 | 600 | 6000 | 6380 | 6500 | 6700 | 7200 | 300 | 2200 | 300 | 400 | 40 | 2301 | 410 | 140 | 35 | 50 | HT300 | 60?80 | 36600 |
2、閘門孔口尺寸為長方形,而孔口寬度B與高度h均為標準值(即可從上表中查出),可按正面方法查出對應技術數據,例:2.5*3.5m閘 門,其值ttB、B1、B2、B3、C1、C、C2、C3、C4、C5、f1"為上表2.5*2.5m-欄中數值。
3、對于其他型號規格閘門,可按用戶要求設計生產非標準產品。
閘門訂貨續知
1、用戶須提供下列內容資料
a、止水方式;確定是單向止水還是雙向;前止水還是后止水,止水帶面材質要求。
b、水流向
c、工作水頭及設計校核水頭
d、吊點數及吊點中心距
e、設計確定的啟閉機型號及啟閉號位及與螺桿連接部位的相關數據
f、水質、泥砂等水文資料信息
g、提供與閘門結合面相關土建結構布置圖
2、閘門吊耳銷軸隨產品供應,閘門吊耳材質為HT200鑄件或Q235焊合件
3、用戶選購名錄(另計價)
a、特殊材質的吊耳銷軸、吊耳
b、雙向止水
c、鑲銅止水帶或不銹鋼止水帶及滑道
d、加長滑道部分(超過本廠標定值)
e、工作水頭超過本公司規定標定值時,需機械強度增加而發生的變更設計后制造增加的費用
f、其他變更
鑄鐵閘門安裝使用
鑄鐵閘門安裝是否正確,決定了閘門的止水效果,安裝時一定要認真閱讀安裝說明書或按我公司現場指導安裝人員的要求正確安裝。鑄鐵閘門的門槽與板面為整體安裝,二次澆注方式(亦可一次性整體安裝澆注)。出廠前閘框與門體已調整好間隙,并用螺栓固定好,固定螺栓要等二次澆注完成并凝固后,方可去除,固定螺栓的位置上面在門楣的迎水面_側,下面在底檻的背水面_側。安裝時首先固定好啟閉機,運用啟閉機螺桿將閘門吊起,放置閘槽中,調整閘門方向,使之與水流方向保持垂直,然后將閘門固定,我廠已在門框上打好調整固定孔,可用螺栓進行調整固定,免去傳統用木楔石塊固定的不便,固定好即可進行二次澆注。鑄鐵閘門的板面與閘槽為偶合件配套,在搬運、倉儲及安裝時不得互換,以免影響止水效果。閘門的迎水面一定要按設計要求安裝,否則會因板面受力方向不對,引起板面斷裂,遇反向受壓時一定要在訂貨時說明,防止發生重大事故。在訂貨時要提供孔口尺寸,水頭,提升高度和結構形式,閘板面一般為正向(迎水面)受壓,如需反向受壓,訂貨時需說明,止水一般是后止水(背水面),需前止水時,訂貨時應說明,使用時按操作規程操作。經常檢查閘門板與閘槽是否卡澀,及時將卡澀物,保證位置置中,使設備正常運行。本公司的鑄鐵閘是按照水利部SL36-2006和《水利水電工程鋼閘門制造、安裝及驗收的規范》GB / T14173—2008規范設計制造。
使用與保養
1、使用手動啟閉機開啟、關閉閘門時,用力應均勻,切勿用力過猛,以防損壞(傷)定位裝置。
2、使用手電兩用啟閉機啟閉閘門時,應注意到:a、用電動啟閉時,應檢查手搖柄是否脫離轉軸,以免在啟動時碰傷人員。
b、用手動啟閉時,應切斷電源,將搖柄插入孔內搖動(或將電動裝置上的電動標記切入到手動標志上去)。(詳情見電動裝置說明書)
c、每2—3個月對啟閉機軸承,傳動螺桿、螺母等加注1 一2次潤滑液,大保養時,應給軸承部分注滿黃油。
d、每年需對閘門作一次油漆、防腐處理。
注意事項
1、閘門位置應處于垂直狀態,不可斜置。
2、水流方向正面進入閘門,閘門不可承受反向壓力(雙向閘門除外)。門體的拱型面為迎水面,凹型面為背水面一定不能裝反。
3、各系列閘門承受的水壓不應超過額定標準。
4、安裝啟閉機與絲桿時應注意啟閉機螺桿與閘門在同一垂直面內。
5、當閘門提升高度較高時應增設軸承架,安裝軸承架時應注意閘門全部打開時,絲桿的接頭處不經過軸承架。
6、特別注意:澆注閘板時整體澆注,決不可以分開澆注,不然達不到止水效果。并且固定螺栓等二次澆注完成后拆除。
聲明:本文中所有文字、數據、圖片均只適用于參考,PGZ鑄鐵鑲銅方閘門性能參數、結構尺寸參數、價格等詳情,請聯系我們,電話:021-80392609。





